




















2/3 AMBIENTES TIPO DUPLEX ENTREGA INMEDIATA A ESTRENAR EN VICENTE LOPEZ
HERMOSO 2 AMBIENTES AL FRENTE TIPO DUPLEX AL FRENTE
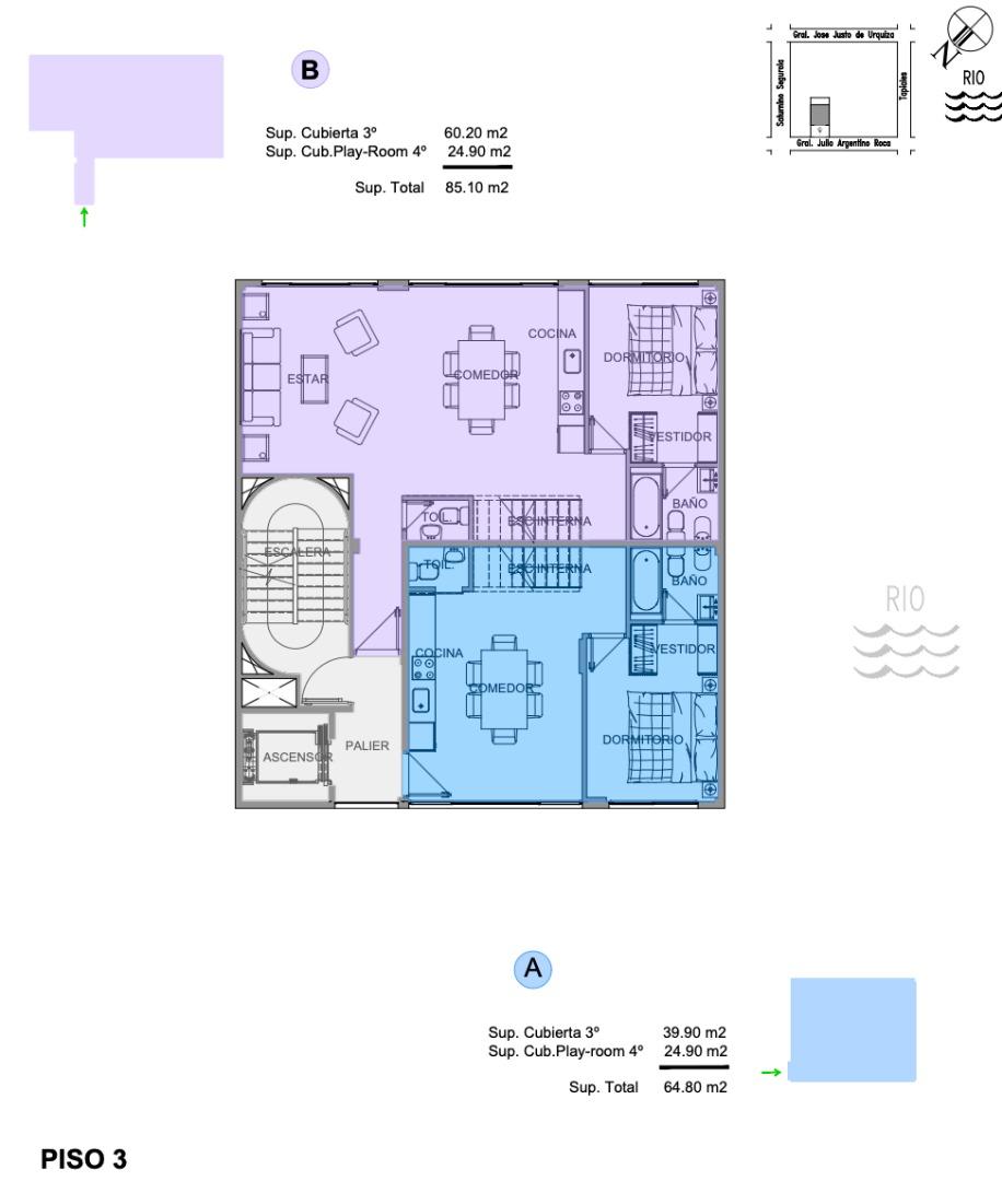
- TERRAZA PROPIA CON PLAY-ROOM o 2DO DORMITORIO .
COCHERA FIJA .(U$S 25.000 )
- cocina americana
- 2 baños completos
- dormitorio en suite con vestidor
- CON GRAN TERRAZA PROPIA Y PLAYROOM
- pisos de porcelanato de primera calidad
- excelentes terminaciones
ESPECIFICACIONES
COCINA
Piso: Porcelanato de primera calidad.
Pared: Yeso.
Cielorraso: Suspendido de roca de yeso.
Mesada: Granito o similar.
Griferia : FV mono comando o similar.
Artefactos de cocina: Cocina eléctrica.
Muebles de cocina: Enchapado en melamina.
BAÑOS
Piso: Porcelanato de primera calidad.
Pared: Porcelanato de primera calidad.
Cielorraso: Suspendido de roca de yeso.
Griferia: FV mono comando o similar.
Artefactos: Marca Ferrum o similar.
BAñera: Enlosada Ferrum o similar.
Accesorios.
TOILETTE
Piso: Porcelanato de primera calidad.
Pared: Revoque de yeso pintado, revestimiento texturado Tarquini o similar.
Cielorraso: Suspendido de roca de yeso.
Artefactos: Marca Ferrum o similar.
Accesorios.
ESTAR
Piso: Porcelanato de primera calidad.
Pared: Revoque de yeso pintado.
Cielorraso: Hormigon visto.
DORMITORIO
Piso: Porcelanato de primera calidad.
Pared: Revoque de yeso pintado.
Cielorraso: Hormigon visto.
Placard.
COCHERAS
Acceso a cocheras de forma directa, sin sistemas mecanicos.
Cocheras cubiertas / descubiertas.
OTROS Divisiones de departamentos con mamposteria de ladrillo común, para lograr
una mejor aislacion acústica.
Los ambientes cuentan con instalacion para la colocacion de aires acondicionados.
Carpinterias de aluminio ALUAR Linea A30 NEW con vidrios DVH (aislacion
acústica y térmica).
Termotanques independientes para cada unidad.
Emprendimiento:
5 EXCLUSIVAS UNIDADES A ESTRENAR DE 47 A 121 MTS
- EXCELENTE CALIDAD DE TERMINACIÓN
- A METROS DEL POLO GASTRONOMICO DE FLORIDA
- A METROS DE LA AVENIDA LIBERTADOR
- COCHERAS OPCIONALES
- ALGUNAS UNIDADES CUENTAN CON PLAYROOM TERRAZA PROPIA
Todas las medidas enunciadas son meramente orientativas, las medidas exactas serán las que se expresen en el respectivo título de propiedad de cada inmueble. Todas las fotos, imagenes y videos son meramente ilustrativos y no contractuales. Los precios enunciados son meramente orientativos y no contractuales..
5633CMCPSI/3921CUCICBA
Julio Argentino Roca N° 885
Apto prof.: No
Apto crédito: No
Superficie total: 101 m²
Superficie cubierta: 65 m²
Disposición: Al frente
Código aviso: 5493